您搜索的关键词为:



安装在污泥脱水设备后,将脱水污泥输运至装载地点,通常污泥输送设备可分为无轴螺旋输送机和皮带输送机。
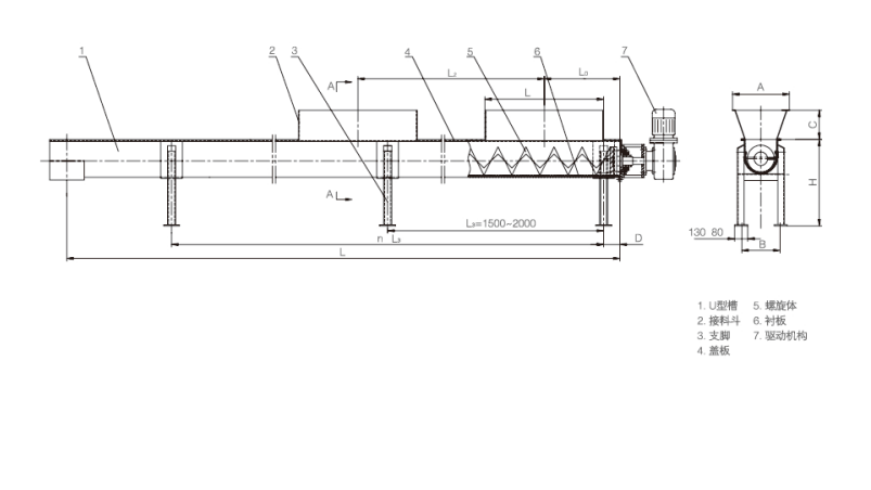
无轴螺旋输送机
一般制作成密封结构,进行输送,起到汇集和改善环境的作用,便于后续处理.
由U型槽,进料斗,盖板,螺旋体,衬板和驱动机构等组成.
特点:全自动电气保护,可实现与污泥脱水系统的联控;
结构紧凑,安装方便,采用膨胀螺栓固定;
槽内衬耐磨材料,噪声小,改善环境:长度、角度、进料斗可按要求定制;
螺旋体叶片由不锈钢或锰钢制作,强度大,耐腐蚀。
皮带输送机
主要用于输送颗粒或粉末状固体,在水域工程上主要用于输送栅渣,脱水后的泥饼、泥沙等.
特点:输送能力大,分有挡边和无挡边型,可作长距离输送,可制作成移动式,方便输送;结构通用性高,便于更换清理;若有需要固定时,可采用膨胀螺栓现场固定,安装方便。
构造原理

流程图


专注于污水污泥处理设备工程,
集研发生产、工程服务于一体

承接各种污染防治项目已超过
500多项



售后服务24小时免费电话指导,
48小时内响应安排人员。




版权所有:扬州合盟机械环保设备有限公司 备案号:苏ICP备2021022929号-1
您搜索的关键词为: